Fleetoffice Hamburg

Projektbeschreibung
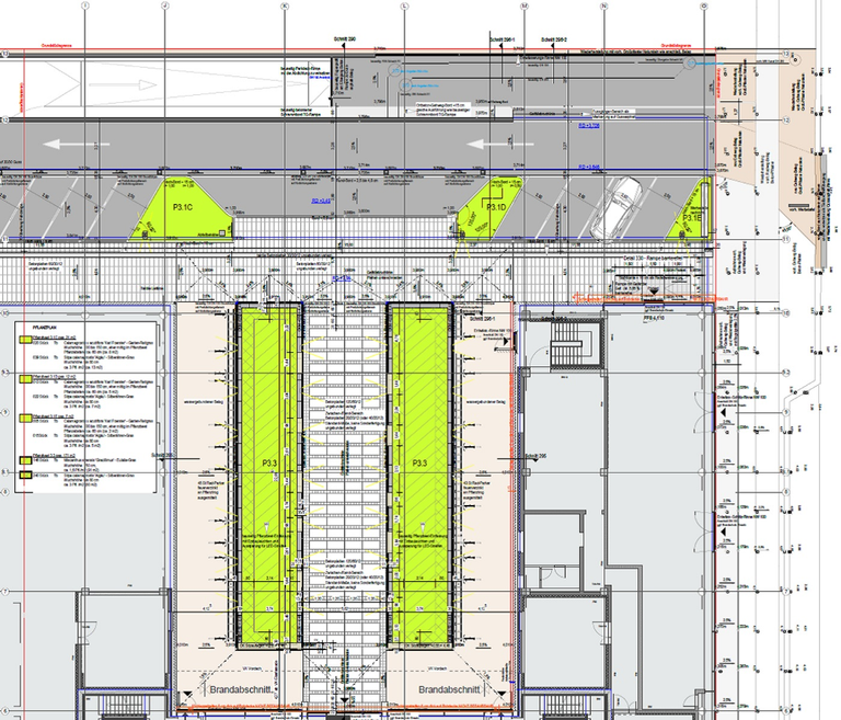
Freianlagen für den Neubau des Büro- und Verwaltungsgebäudes Fleetoffice in Hamburg.
Zunächst wurden Generalunternehmer und Hochbauarchitekten in der Entwurfphase / Entwicklung der Freianlagen technisch und wirtschaftlich beraten.
Danach erfolgten weitere Abstimmungen sowie die Werk- und Detail-Planung und Ausschreibung in zwei Bauabschnitten.
Aufgrund geringer Aufbauhöhen und Auflastvorgaben der Tiefgarage waren enge Abstimmungen mit Tragwerksplanung und besondere technische Lösungen gefordert.
Begrünte Innenhöfe mit Pflanzbecken und Sitzgelegenheiten bieten angenehme Aufenthalts- und Eingangs-Bereiche.
Informationen
AG: Wolff&Müller GmbH&Co.KG für Becken Development GmbH
Datum: 2012 bis 2016
Leistungen: Freiananlagen Beratung in LPH 3 für W&M, Hadi Teherani Architects GmbH und LPH 5+6






