Friedhof Katharinenkirche Ludwigsburg-Eglosheim

Projektbeschreibung
Friedhofs-Erweiterung und Umgestaltung des Haupt-Eingangs und Parkplatzes.
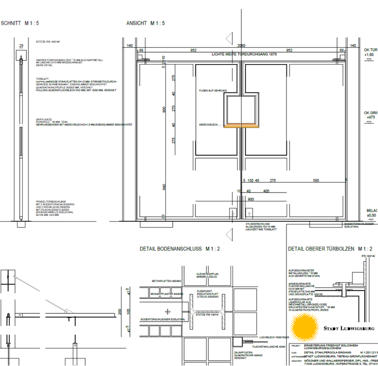
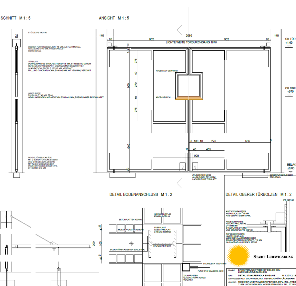
Betonung der fußläufigen Erschliessung mit grosszügigem Eingangsbereich, Pergolen und Portal.
Umpflanzung bestehender Großbäume. Anlage neuer Grabfelder.
Erstellung einer WC-Anlage und Bauhof-Gebäude.
Neugestaltung der Belagsflächen an der Katharinenkirche.
Informationen
AG: Stadt Ludwigsburg bei MW Architekten GmbH
Datum: vor 2005
Leistungen: Eingangsbereich und neues Grabfeld Friedhof und Katharinenkirche












