frei | raum | architektur

Königsstraße Asperg

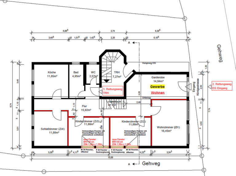
Projektbeschreibung

Planung und Bauüberwachung für den Umbau einer Gewerbe-Einheit zur Wohn-Nutzung. Interne Umstrukturierung der Flächen und Renovierung des Bestandes.

Informationen

AG: Familie H
Datum: 2023-2025
Leistungen: Kostenermittlung, Baugesuch, Bauüberwachung