Nordheimerstraße Stuttgart

Projektbeschreibung
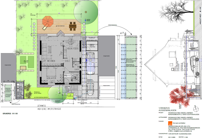
Planung, Baugesuch, Ausschreibungen und Bauüberwachung zur energetischen Innen- und Dach- und Fassaden-Sanierung eines Einfamilienhauses und der Freianlagen mit Carport, Abstellraum und Zisterne.
Erstellung des Sicherheits- und Gesundheitsschutz-Planes mit Baustellenordnung und Aushängen. Sicherheits- und Gesundheitsschutz-Koordination während der Bauausführung.
Informationen
AG: Familie D-L
Datum: 2010-2011
Leistungen: Entwurf, Baugesuch, Ausschreibung, Bauüberwachung






